
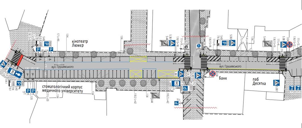
В Івано-Франківську розробили нову схему організації дорожнього руху по вулиці Грушевського. Головна мета — впорядкувати рух, паркування, підвищити безпеку та зробити вулицю зручнішою і доступнішою для людей з інвалідністю.
Про це повідомив заступник міського голови Михайло Смушак, пише ПІК.

Що передбачили проєктом:
- Антикишеня на перехресті з вул. Вагилевича — для кращої видимості та безпеки пішоходів
- Пониження бордюру в районі ресторану «Десятка», а також нормативні відстані від припаркованих автомобілів до переходів
- Місця для завантаження/розвантаження — для бізнесів, яких у центральній частині дуже багато.
Смушак каже, що ще є декілька дискусійних пропозицій, яких розробленою схемою не передбачено, але щодо яких їм цікава думка місцях. Зокрема, йдеться про обмеження руху у вихідні та святкові дні – “чи є доцільним відновити обмеження проїзду автомобілів по вул. Грушевського на ділянці від вул. Галицької до вул. Вагилевича у вихідні дні та святкові дні?”.
Інше питання – це повне перекриття і перетворення вулиці Грушевського на пішохідну зону на ділянці від вулиці Галицької до вулиці Вагилевича, або створення закритої паркувальної зони — за прикладом вул. Шевченка (ділянка від вул. Січових Стрільців до вул. Гординського).
“Щодо закритої паркувальної зони, то тут принципова умова: така зона має бути виключно в управлінні КП «Сервіс паркування», а не приватних операторів – подібно до практики в центрі Львова”, – йдеться у повідомленні.
Читайте також:
Оперативні новини у TELEGRAM



